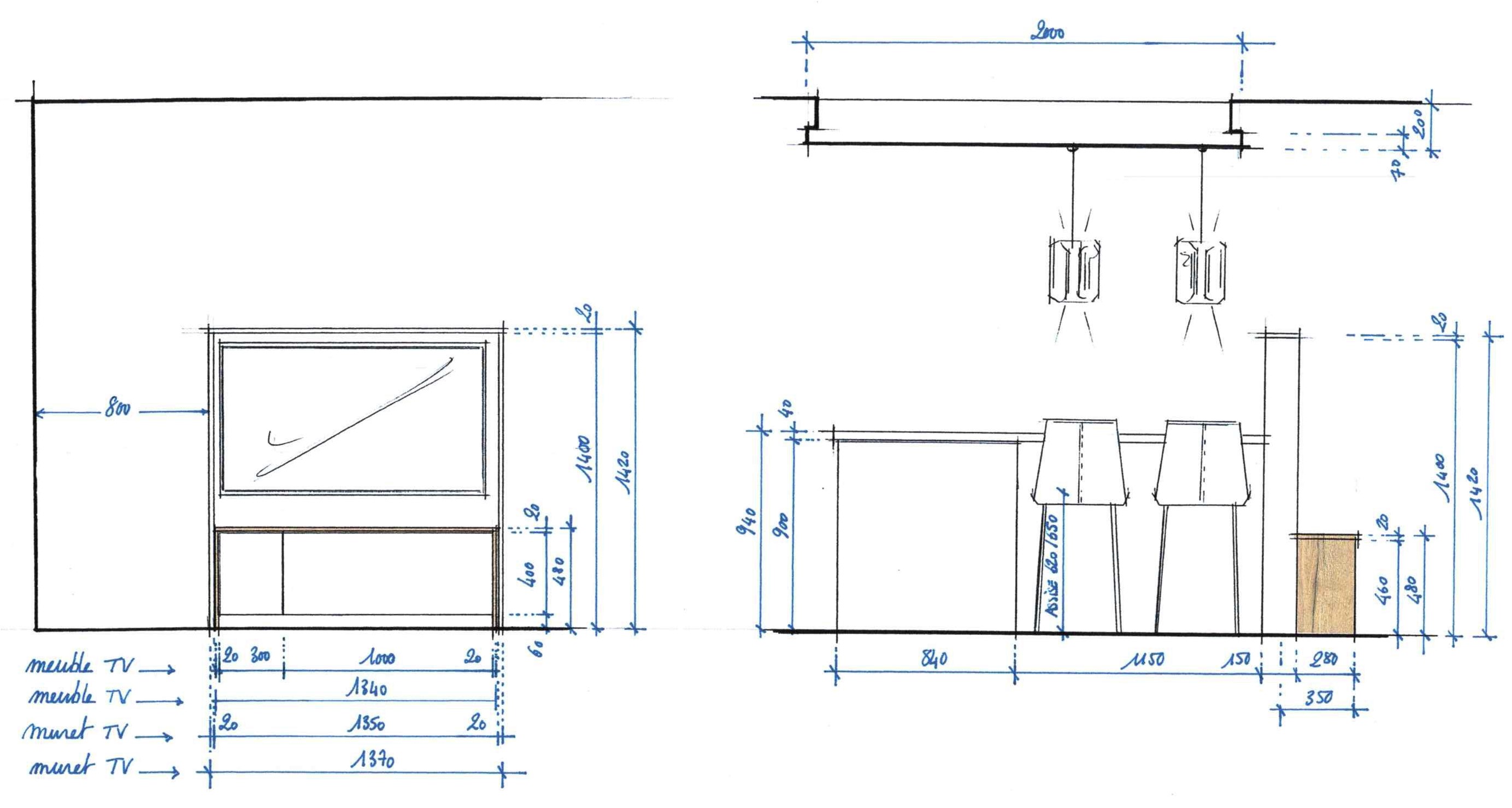
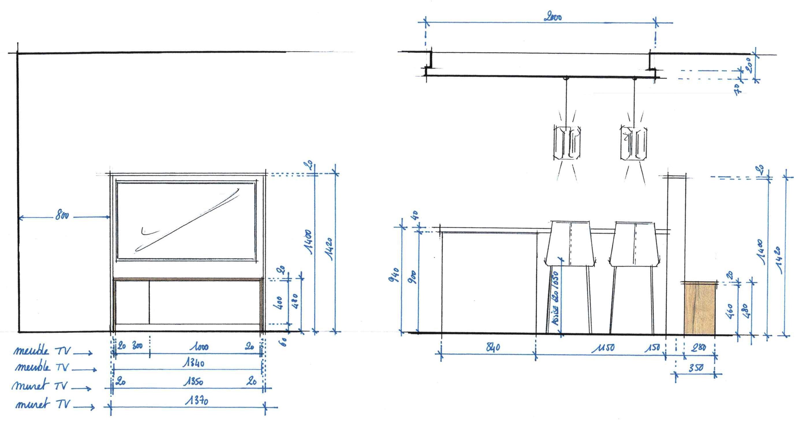
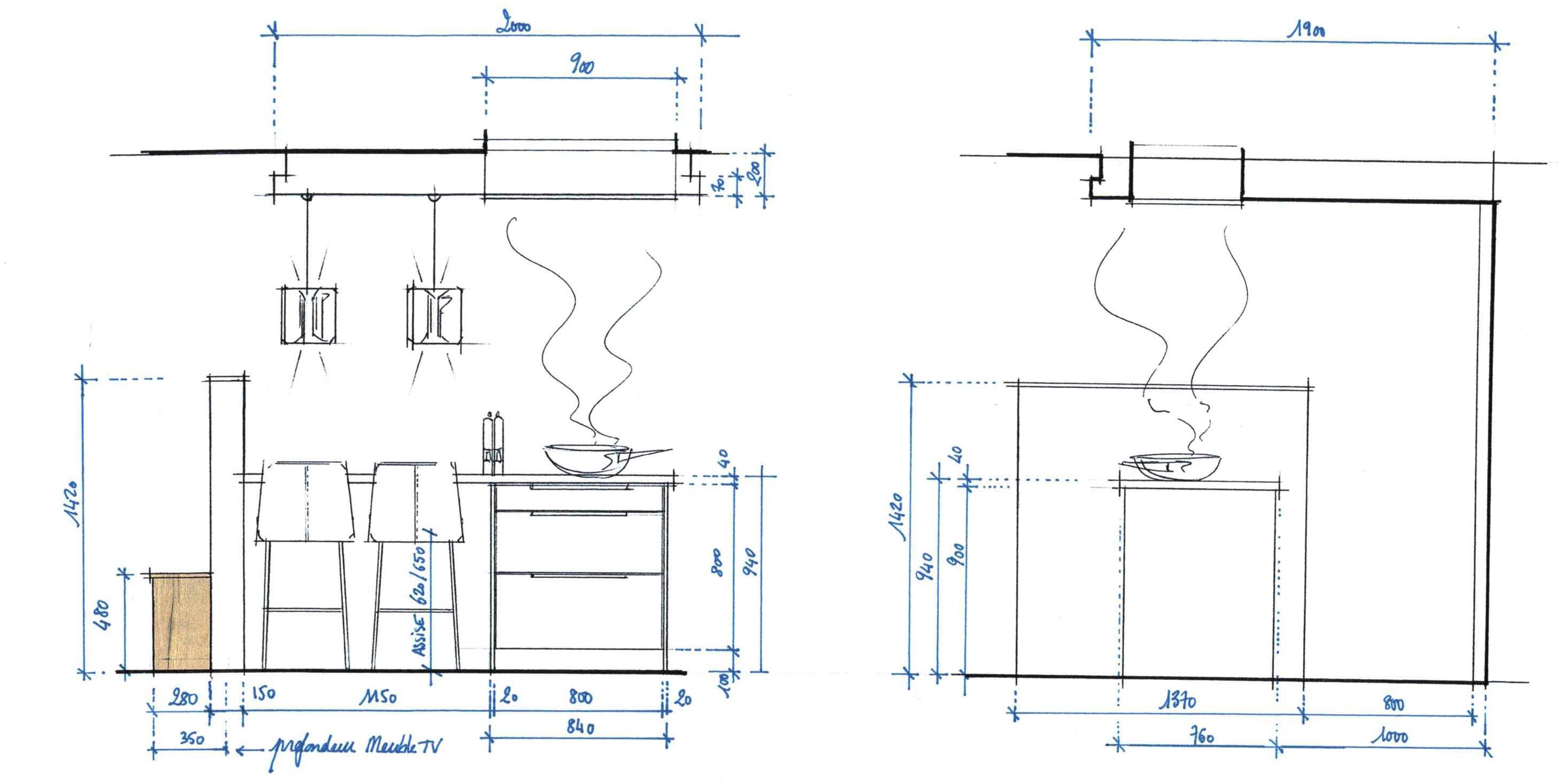
Rénovation d’une maison de particuliers à Cholet
Les propriétaires de cette maison des années 1980 ont voulu lui redonner un coup de jeune en rénovant l’ensemble de la pièce de vie. La cuisine blanche, l’enduit Terdici et les teintes bois apportent de la modernité dans cet espace.
Projet étudié en novembre 2020 et réalisé en 2022














